Top.Mail.Ru

улица Маршала Кожедуба, д. 2, к. 1

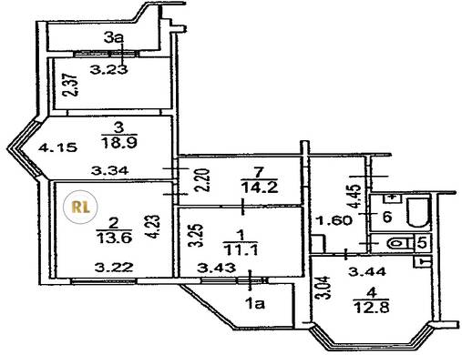
База каталог, Кол-во подъездов: 8, П-44T, Москва, Люблино, Пассажирский лифт: 8, От метро: 2050, Юго-Восточный, да, Наименьшее кол-во этажей: 0, Наибольшее кол-во этажей: 14, Люблино, Кол-во помещений: 428, Кол-во нежилых помещений: 0, Год ввода в эксплуатацию: 2003, 3-комн, Кол-во жилых помещений: 428, дом 2, корпус 1, нет, да, да, да, нет, нет, Имеется, Грузовых лифтов: 8, Год постройки: 2003, улица Маршала Кожедуба, 37.784596, 55.667046
Свяжитесь со мной на счет цены
10 дн.
T55S667046L37S784596T

На карте


Условия сделки

Источник


Старт продаж

Возможно заинтересует