Top.Mail.Ru

проспект Вернадского, д. 93, к. 1

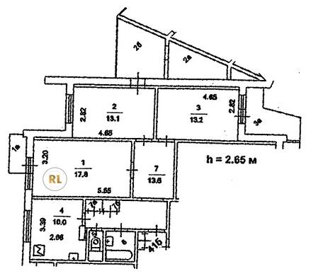
База каталог, Кол-во подъездов: 5, Отсутствует, П-3/16, Москва, Тропарево-Никулино, Площадь парковки: 0, Пассажирский лифт: 5, От метро: 1000, Западный, нет, Наименьшее кол-во этажей: 1, Наибольшее кол-во этажей: 16, Юго-Западная, Кол-во помещений: 323, Кол-во нежилых помещений: 14, Год ввода в эксплуатацию: 1979, 3-комн, Кол-во жилых помещений: 309, Не присвоен, дом 93, корпус 1, нет, да, да, да, да, да, Отсутствует, Грузовых лифтов: 5, Год постройки: 1979, проспект Вернадского, 37.496767, 55.667086
Свяжитесь со мной на счет цены
10 дн.
T55S667086L37S496767T

На карте


Условия сделки

Источник


Старт продаж

Возможно заинтересует