Top.Mail.Ru

проспект Вернадского, д. 97, к. 1

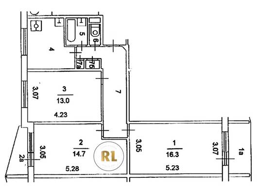
База каталог, Кол-во подъездов: 3, Отсутствует, II-57-03/12Ю17, Москва, Тропарево-Никулино, Площадь парковки: 0, Пассажирский лифт: 6, От метро: 700, Западный, нет, Наименьшее кол-во этажей: 12, Наибольшее кол-во этажей: 13, Юго-Западная, Кол-во помещений: 159, Кол-во нежилых помещений: 14, Год ввода в эксплуатацию: 1972, 3-комн, Кол-во жилых помещений: 145, Не присвоен, дом 97, корпус 1, нет, да, да, да, да, да, Отсутствует, Грузовых лифтов: 0, Год постройки: 1972, проспект Вернадского, 37.491377, 55.667152
Свяжитесь со мной на счет цены
10 дн.
T55S667152L37S491377T

На карте


Условия сделки

Источник


Старт продаж

Возможно заинтересует