Top.Mail.Ru

улица Цюрупы, д. 22, к. 1

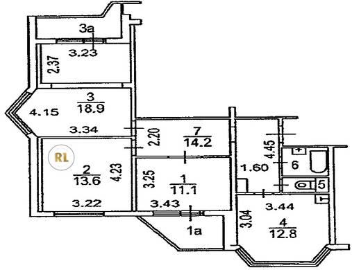
База каталог, Кол-во подъездов: 2, П-44T, Москва, Черемушки, Площадь парковки: 0, Пассажирский лифт: 2, От метро: 960, Юго-Западный, нет, Наименьшее кол-во этажей: 17, Наибольшее кол-во этажей: 17, Новые Черёмушки, Кол-во помещений: 128, Кол-во нежилых помещений: 1, Год ввода в эксплуатацию: 1999, 3-комн, Кол-во жилых помещений: 127, Не присвоен, дом 22, корпус 1, нет, да, да, да, да, да, Грузовых лифтов: 2, Год постройки: 1999, улица Цюрупы, 37.568372, 55.667234
Свяжитесь со мной на счет цены
10 дн.
T55S667234L37S568372T

На карте


Условия сделки

Источник


Старт продаж

Возможно заинтересует