Top.Mail.Ru

улица Цюрупы, д. 20, к. 1

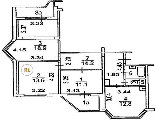
База каталог, Кол-во подъездов: 4, П-44T, Москва, Черемушки, Площадь парковки: 0, Пассажирский лифт: 4, От метро: 1070, Юго-Западный, нет, Наименьшее кол-во этажей: 17, Наибольшее кол-во этажей: 17, Новые Черёмушки, Кол-во помещений: 247, Кол-во нежилых помещений: 2, Год ввода в эксплуатацию: 1999, 3-комн, Кол-во жилых помещений: 245, Не присвоен, дом 20, корпус 1, нет, да, да, да, да, да, Грузовых лифтов: 4, Год постройки: 1999, улица Цюрупы, 37.569692, 55.667295
Свяжитесь со мной на счет цены
10 дн.
T55S667295L37S569692T

На карте


Условия сделки

Источник


Старт продаж

Возможно заинтересует