Top.Mail.Ru

Криворожская ул., д. 17

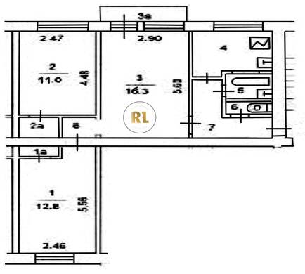
База каталог, Кол-во подъездов: 4, I-511, Москва, Нагорный, Пассажирский лифт: 0, От метро: 690, Южный, да, Наименьшее кол-во этажей: 5, Наибольшее кол-во этажей: 5, Нахимовский проспект, Кол-во помещений: 80, Кол-во нежилых помещений: 0, Год ввода в эксплуатацию: 1964, 3-комн, Кол-во жилых помещений: 80, дом 17, нет, да, да, да, да, да, Грузовых лифтов: 0, Год постройки: 1964, Криворожская улица, 37.612335, 55.667508
Свяжитесь со мной на счет цены
10 дн.
T55S667508L37S612335T

На карте


Условия сделки

Источник


Старт продаж

Возможно заинтересует