Top.Mail.Ru

улица Цюрупы, д. 18, к. 1

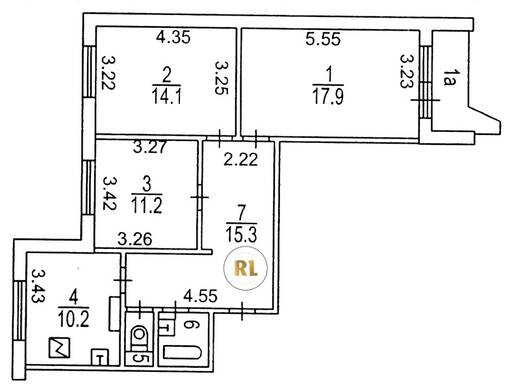
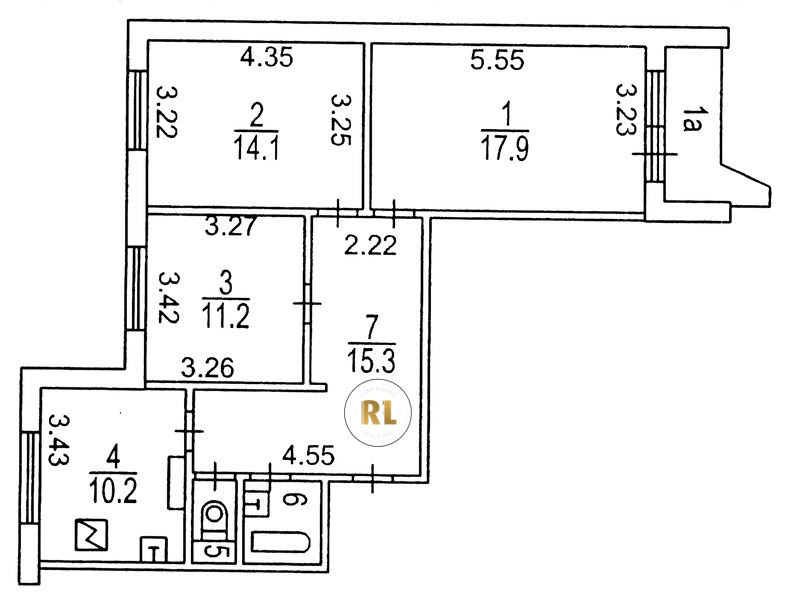
База каталог, Кол-во подъездов: 4, П-44, Москва, Черемушки, Площадь парковки: 0, Пассажирский лифт: 4, От метро: 1170, Юго-Западный, нет, Наименьшее кол-во этажей: 17, Наибольшее кол-во этажей: 17, Новые Черёмушки, Кол-во помещений: 269, Кол-во нежилых помещений: 1, Год ввода в эксплуатацию: 1998, 3-комн, Кол-во жилых помещений: 268, Не присвоен, дом 18, корпус 1, нет, да, да, да, да, нет, Грузовых лифтов: 4, Год постройки: 1998, улица Цюрупы, 37.571507, 55.667554
Свяжитесь со мной на счет цены
10 дн.
T55S667554L37S571507T

На карте


Условия сделки

Источник


Старт продаж

Возможно заинтересует