Top.Mail.Ru

Краснодарская ул., д. 74, к. 2

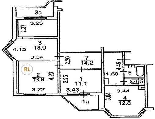
База каталог, Кол-во подъездов: 7, Отсутствует, П-44T, Москва, Люблино, Пассажирский лифт: 7, От метро: 1720, Юго-Восточный, да, Наименьшее кол-во этажей: 0, Наибольшее кол-во этажей: 14, Люблино, Кол-во помещений: 390, Кол-во нежилых помещений: 0, Год ввода в эксплуатацию: 2003, 3-комн, Кол-во жилых помещений: 390, дом 74, корпус 2, нет, да, да, да, нет, нет, Имеется, Грузовых лифтов: 7, Год постройки: 2003, Краснодарская улица, 37.780841, 55.667955
Свяжитесь со мной на счет цены
10 дн.
T55S667955L37S780841T

На карте


Условия сделки

Источник


Старт продаж

Возможно заинтересует