Top.Mail.Ru

Никулинская ул., д. 23, к. 2

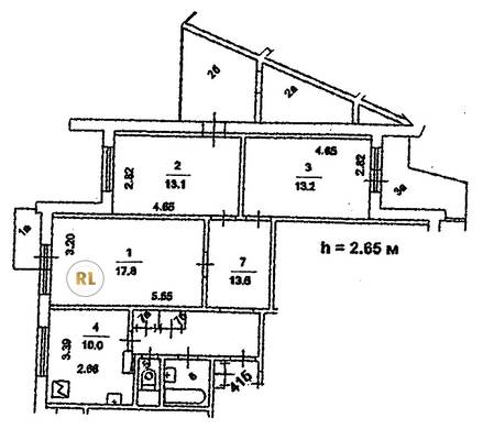
База каталог, Кол-во подъездов: 5, Отсутствует, П-3/16, Москва, Тропарево-Никулино, Площадь парковки: 0, Пассажирский лифт: 5, От метро: 490, Западный, нет, Наименьшее кол-во этажей: 1, Наибольшее кол-во этажей: 17, Озёрная, Кол-во помещений: 341, Кол-во нежилых помещений: 5, Год ввода в эксплуатацию: 1993, 3-комн, Кол-во жилых помещений: 336, Не присвоен, дом 23, корпус 2, да, да, да, да, да, да, Отсутствует, Грузовых лифтов: 5, Год постройки: 1993, Никулинская улица, 37.451411, 55.668005
Свяжитесь со мной на счет цены
10 дн.
T55S668005L37S451411T

На карте


Условия сделки

Источник


Старт продаж

Возможно заинтересует