Top.Mail.Ru

Никулинская ул., д. 15, к. 1

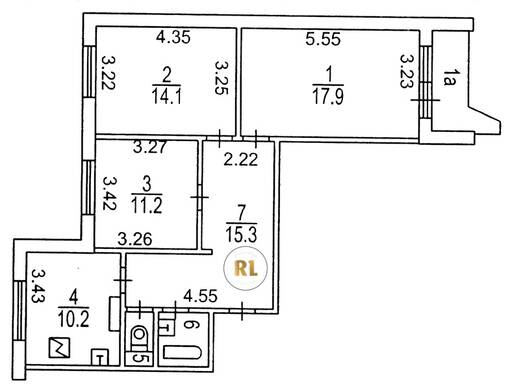
База каталог, Кол-во подъездов: 4, Имеется, П-44, Москва, Тропарево-Никулино, Площадь парковки: 0, Пассажирский лифт: 4, От метро: 490, Западный, нет, Наименьшее кол-во этажей: 0, Наибольшее кол-во этажей: 17, Озёрная, Кол-во помещений: 258, Кол-во нежилых помещений: 2, Год ввода в эксплуатацию: 1993, 3-комн, Кол-во жилых помещений: 256, D, дом 15, корпус 1, да, да, да, да, да, да, Имеется, Грузовых лифтов: 4, Год постройки: 1993, Никулинская улица, 37.455660, 55.668071
24 000 000 Р
10 дн.
T55S668071L37S455660T
+

На карте


Условия сделки

Источник