Top.Mail.Ru

Краснодарская ул., д. 72, к. 3

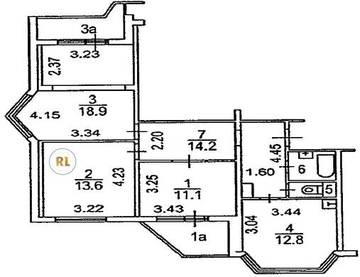
База каталог, Кол-во подъездов: 5, Имеется, П-44T, Москва, Люблино, Пассажирский лифт: 5, От метро: 1700, Юго-Восточный, да, Наименьшее кол-во этажей: 0, Наибольшее кол-во этажей: 17, Люблино, Кол-во помещений: 338, Кол-во нежилых помещений: 0, Год ввода в эксплуатацию: 2003, 3-комн, Кол-во жилых помещений: 338, дом 72, корпус 3, нет, да, да, да, нет, нет, Отсутствует, Грузовых лифтов: 5, Год постройки: 2003, Краснодарская улица, 37.779054, 55.668143
Свяжитесь со мной на счет цены
10 дн.
T55S668143L37S779054T

На карте


Условия сделки

Источник


Старт продаж

Возможно заинтересует