Top.Mail.Ru

улица Верхние Поля, д. 36, к. 1

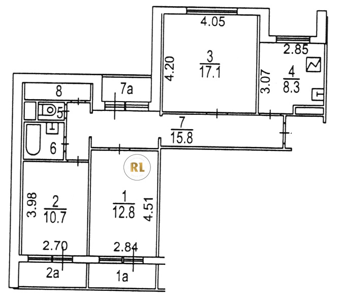
База каталог, Кол-во подъездов: 6, Имеется, П-55, Москва, Марьино, Пассажирский лифт: 6, От метро: 930, Юго-Восточный, да, Наименьшее кол-во этажей: 14, Наибольшее кол-во этажей: 14, Люблино, Кол-во помещений: 265, Кол-во нежилых помещений: 5, Год ввода в эксплуатацию: 2000, 3-комн, Кол-во жилых помещений: 260, Не присвоен, дом 36, корпус 1, нет, да, да, да, да, да, Имеется, Грузовых лифтов: 6, Год постройки: 2000, улица Верхние Поля, 37.764007, 55.668198
Свяжитесь со мной на счет цены
10 дн.
T55S668198L37S764007T

На карте


Условия сделки

Источник


Старт продаж

Возможно заинтересует