Top.Mail.Ru

улица Верхние Поля, д. 33, к. 1

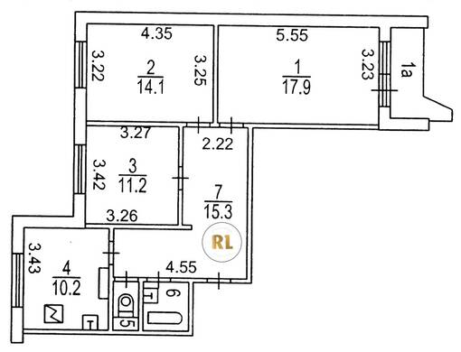
База каталог, Кол-во помещений: 319, Отсутствует, П-44, Москва, Люблино, Площадь парковки: 0, Пассажирский лифт: 4, От метро: 870, Юго-Восточный, нет, Наименьшее кол-во этажей: 1, Наибольшее кол-во этажей: 17, Люблино, Кол-во подъездов: 5, Год ввода в эксплуатацию: 2001, Кол-во нежилых помещений: 0, 3-комн, Кол-во жилых помещений: 319, дом 33, корпус 1, нет, да, да, да, да, да, Имеется, Грузовых лифтов: 4, Год постройки: 2001, улица Верхние Поля, 37.755850, 55.668224
Свяжитесь со мной на счет цены
10 дн.
T55S668224L37S755850T

На карте


Условия сделки

Источник


Старт продаж

Возможно заинтересует