Top.Mail.Ru

улица Академика Анохина, д. 6, к. 1

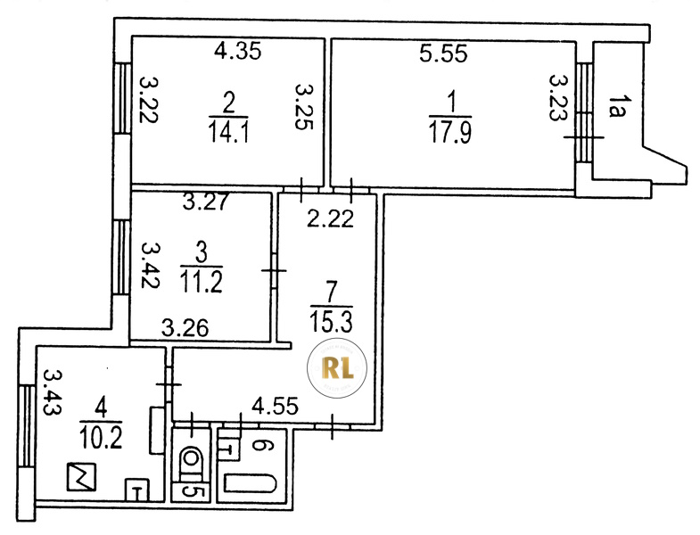
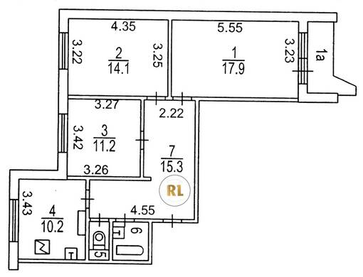
База каталог, Кол-во подъездов: 2, П-44, Москва, Тропарево-Никулино, Площадь парковки: 0, Пассажирский лифт: 2, От метро: 1250, Западный, нет, Наименьшее кол-во этажей: 1, Наибольшее кол-во этажей: 16, Юго-Западная, Кол-во помещений: 129, Кол-во нежилых помещений: 2, Год ввода в эксплуатацию: 1982, 3-комн, Кол-во жилых помещений: 127, Не присвоен, дом 6, корпус 1, нет, да, да, да, да, нет, Грузовых лифтов: 2, Год постройки: 1982, улица Академика Анохина, 37.471488, 55.668346
Свяжитесь со мной на счет цены
10 дн.
T55S668346L37S471488T

На карте


Условия сделки

Источник


Старт продаж

Возможно заинтересует