Top.Mail.Ru

улица Верхние Поля, д. 35, к. 2

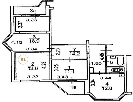
База каталог, Кол-во подъездов: 2, Отсутствует, П-44T, Москва, Люблино, Пассажирский лифт: 2, От метро: 810, Юго-Восточный, да, Наименьшее кол-во этажей: 1, Наибольшее кол-во этажей: 17, Люблино, Кол-во помещений: 128, Кол-во нежилых помещений: 0, Год ввода в эксплуатацию: 2001, 3-комн, Кол-во жилых помещений: 128, дом 35, корпус 2, нет, да, да, да, да, да, Отсутствует, Грузовых лифтов: 2, Год постройки: 2001, улица Верхние Поля, 37.757530, 55.668391
Свяжитесь со мной на счет цены
10 дн.
T55S668391L37S757530T

На карте


Условия сделки

Источник


Старт продаж

Возможно заинтересует