Top.Mail.Ru

улица Верхние Поля, д. 37, к. 1

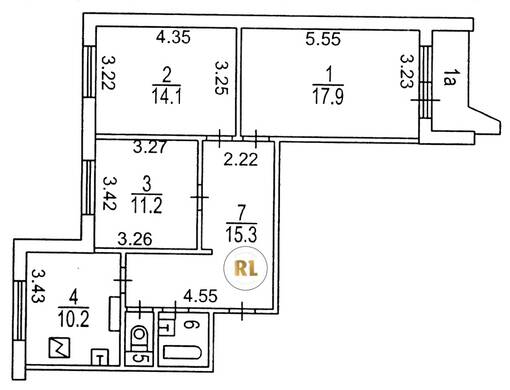
База каталог, Кол-во подъездов: 2, П-44, Москва, Люблино, Пассажирский лифт: 0, От метро: 760, Юго-Восточный, да, Наименьшее кол-во этажей: 0, Наибольшее кол-во этажей: 0, Люблино, Кол-во помещений: 0, Кол-во нежилых помещений: 0, Год ввода в эксплуатацию: 2001, 3-комн, Кол-во жилых помещений: 0, дом 37, корпус 1, нет, да, да, да, да, да, Имеется, Грузовых лифтов: 0, Год постройки: 2001, улица Верхние Поля, 37.760333, 55.668432
Свяжитесь со мной на счет цены
10 дн.
T55S668432L37S760333T

На карте


Условия сделки

Источник


Старт продаж

Возможно заинтересует