Top.Mail.Ru

улица Верхние Поля, д. 35, к. 3

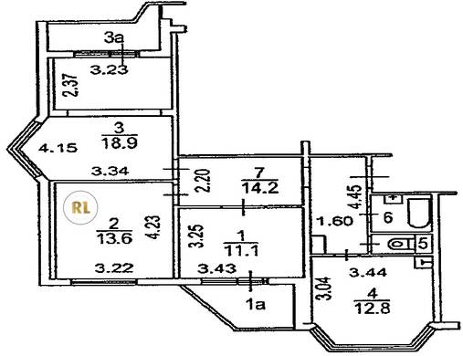
База каталог, Кол-во подъездов: 4, П-44T, Москва, Люблино, Пассажирский лифт: 4, От метро: 720, Юго-Восточный, да, Наименьшее кол-во этажей: 1, Наибольшее кол-во этажей: 17, Люблино, Кол-во помещений: 264, Кол-во нежилых помещений: 0, Год ввода в эксплуатацию: 2001, 3-комн, Кол-во жилых помещений: 264, дом 35, корпус 3, нет, да, да, да, да, да, Отсутствует, Грузовых лифтов: 4, Год постройки: 2001, улица Верхние Поля, 37.758284, 55.668544
Свяжитесь со мной на счет цены
10 дн.
T55S668544L37S758284T

На карте


Условия сделки

Источник


Старт продаж

Возможно заинтересует