Top.Mail.Ru

улица Цюрупы, д. 12, к. 6

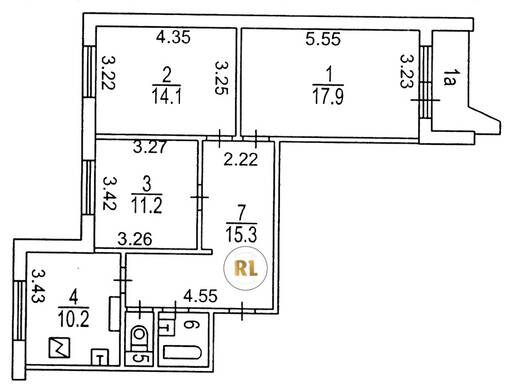
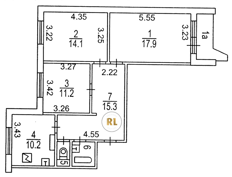
База каталог, Кол-во подъездов: 2, П-44, Москва, Черемушки, Площадь парковки: 0, Пассажирский лифт: 2, От метро: 1490, Юго-Западный, нет, Наименьшее кол-во этажей: 17, Наибольшее кол-во этажей: 17, Профсоюзная, Кол-во помещений: 135, Кол-во нежилых помещений: 0, Год ввода в эксплуатацию: 1996, 3-комн, Кол-во жилых помещений: 135, Не присвоен, дом 12, корпус 6, нет, да, да, да, да, нет, Грузовых лифтов: 2, Год постройки: 1996, улица Цюрупы, 37.574777, 55.668686
Свяжитесь со мной на счет цены
10 дн.
T55S668686L37S574777T

На карте


Условия сделки

Источник


Старт продаж

Возможно заинтересует