Top.Mail.Ru

улица Марьинский Парк, д. 39, к. 1

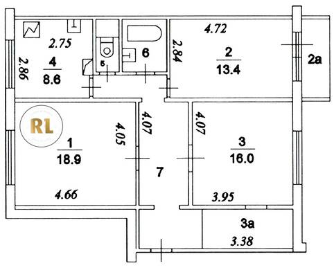
База каталог, Кол-во помещений: 127, Имеется, П-46M, Москва, Люблино, Пассажирский лифт: 0, От метро: 2380, Юго-Восточный, да, Наименьшее кол-во этажей: 0, Наибольшее кол-во этажей: 8, Люблино, Кол-во подъездов: 5, Год ввода в эксплуатацию: 2003, Кол-во нежилых помещений: 0, 3-комн, Кол-во жилых помещений: 127, дом 39, корпус 1, нет, да, да, нет, нет, нет, Грузовых лифтов: 5, Год постройки: 2003, улица Марьинский Парк, 37.791280, 55.668777
Свяжитесь со мной на счет цены
10 дн.
T55S668777L37S791280T

На карте


Условия сделки

Источник


Старт продаж

Возможно заинтересует