Top.Mail.Ru

улица Верхние Поля, д. 31, к. 3

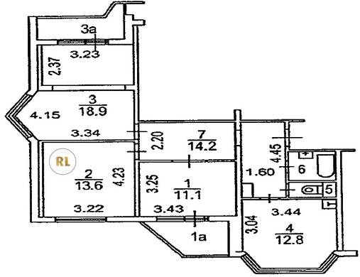
База каталог, Кол-во подъездов: 2, П-44К, Москва, Люблино, Пассажирский лифт: 4, От метро: 930, Юго-Восточный, да, Наименьшее кол-во этажей: 17, Наибольшее кол-во этажей: 17, Люблино, Кол-во помещений: 128, Кол-во нежилых помещений: 0, Год ввода в эксплуатацию: 2003, 3-комн, Кол-во жилых помещений: 128, дом 31, корпус 3, нет, да, да, да, да, да, Грузовых лифтов: 0, Год постройки: 2003, улица Верхние Поля, 37.753532, 55.668990
Свяжитесь со мной на счет цены
10 дн.
T55S668990L37S753532T

На карте


Условия сделки

Источник


Старт продаж

Возможно заинтересует