Top.Mail.Ru

улица Верхние Поля, д. 35, к. 5

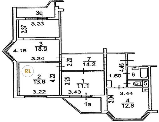
База каталог, Кол-во подъездов: 4, Имеется, П-44T, Москва, Люблино, Пассажирский лифт: 4, От метро: 580, Юго-Восточный, да, Наименьшее кол-во этажей: 1, Наибольшее кол-во этажей: 17, Люблино, Кол-во помещений: 260, Кол-во нежилых помещений: 0, Год ввода в эксплуатацию: 2001, 3-комн, Кол-во жилых помещений: 260, дом 35, корпус 5, да, да, да, да, да, да, Имеется, Грузовых лифтов: 4, Год постройки: 2001, улица Верхние Поля, 37.758716, 55.669772
Свяжитесь со мной на счет цены
10 дн.
T55S669772L37S758716T

На карте


Условия сделки

Источник


Старт продаж

Возможно заинтересует