Top.Mail.Ru

улица Маршала Баграмяна, д. 2

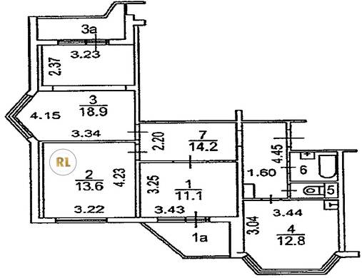
База каталог, Кол-во подъездов: 5, П-44T, Москва, Люблино, Пассажирский лифт: 5, От метро: 2220, Юго-Восточный, да, Наименьшее кол-во этажей: 0, Наибольшее кол-во этажей: 17, Люблино, Кол-во помещений: 323, Кол-во нежилых помещений: 0, Год ввода в эксплуатацию: 2003, 3-комн, Кол-во жилых помещений: 323, дом 2, нет, да, да, нет, нет, нет, Имеется, Грузовых лифтов: 5, Год постройки: 2003, улица Маршала Баграмяна, 37.788567, 55.670118
Свяжитесь со мной на счет цены
10 дн.
T55S670118L37S788567T

На карте


Условия сделки

Источник


Старт продаж

Возможно заинтересует