Top.Mail.Ru

Новочеремушкинская ул., д. 53, к. 4

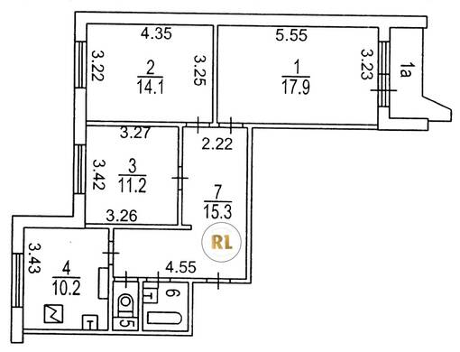
База каталог, Кол-во подъездов: 2, П-44, Москва, Черемушки, Площадь парковки: 0, Пассажирский лифт: 2, От метро: 1160, Юго-Западный, нет, Наименьшее кол-во этажей: 17, Наибольшее кол-во этажей: 17, Новые Черёмушки, Кол-во помещений: 136, Кол-во нежилых помещений: 1, Год ввода в эксплуатацию: 1995, 3-комн, Кол-во жилых помещений: 135, Не присвоен, дом 53, корпус 4, нет, да, да, да, да, нет, Грузовых лифтов: 2, Год постройки: 1995, Новочеремушкинская улица, 37.570968, 55.670128
Свяжитесь со мной на счет цены
10 дн.
T55S670128L37S570968T

На карте


Условия сделки

Источник


Старт продаж

Возможно заинтересует