Top.Mail.Ru

Новочеремушкинская ул., д. 57

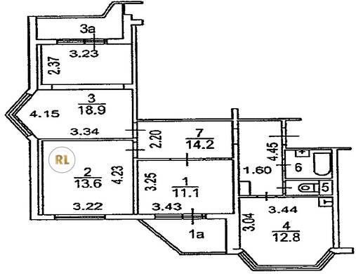
База каталог, Кол-во подъездов: 7, П-44T, Москва, Черемушки, Площадь парковки: 0, Пассажирский лифт: 7, От метро: 920, Юго-Западный, нет, Наименьшее кол-во этажей: 17, Наибольшее кол-во этажей: 17, Новые Черёмушки, Кол-во помещений: 448, Кол-во нежилых помещений: 8, Год ввода в эксплуатацию: 2002, 3-комн, Кол-во жилых помещений: 440, Не присвоен, дом 57, нет, да, да, да, да, да, Грузовых лифтов: 7, Год постройки: 2002, Новочеремушкинская улица, 37.567599, 55.670163
Свяжитесь со мной на счет цены
10 дн.
T55S670163L37S567599T

На карте


Условия сделки

Источник


Старт продаж

Возможно заинтересует