Top.Mail.Ru

Белореченская ул., д. 12

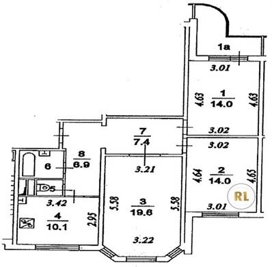
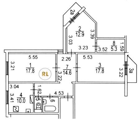
База каталог, Кол-во подъездов: 7, Отсутствует, П-3M, Москва, Люблино, Площадь парковки: 0, Пассажирский лифт: 7, От метро: 620, Юго-Восточный, нет, Наименьшее кол-во этажей: 0, Наибольшее кол-во этажей: 17, Люблино, Кол-во помещений: 473, Кол-во нежилых помещений: 0, Год ввода в эксплуатацию: 2004, 3-комн, Кол-во жилых помещений: 473, Не присвоен, дом 12, нет, да, да, да, да, да, Имеется, Грузовых лифтов: 7, Год постройки: 2004, Белореченская улица, 37.763989, 55.670366
Свяжитесь со мной на счет цены
10 дн.
T55S670366L37S763989T

На карте


Условия сделки

Источник


Старт продаж

Возможно заинтересует