Top.Mail.Ru

Новочеремушкинская ул., д. 50

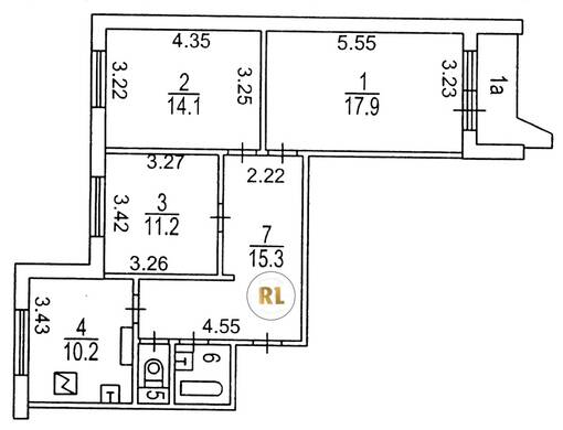
База каталог, Кол-во подъездов: 15, П-44, Москва, Черемушки, Площадь парковки: 0, Пассажирский лифт: 15, От метро: 830, Юго-Западный, нет, Наименьшее кол-во этажей: 14, Наибольшее кол-во этажей: 17, Новые Черёмушки, Кол-во помещений: 918, Кол-во нежилых помещений: 10, Год ввода в эксплуатацию: 1996, 3-комн, Кол-во жилых помещений: 908, Не присвоен, дом 50, нет, да, да, да, да, да, Грузовых лифтов: 15, Год постройки: 1996, Новочеремушкинская улица, 37.566243, 55.670585
Свяжитесь со мной на счет цены
10 дн.
T55S670585L37S566243T

На карте


Условия сделки

Источник


Старт продаж

Возможно заинтересует