Top.Mail.Ru

проезд Кирова, д. 4

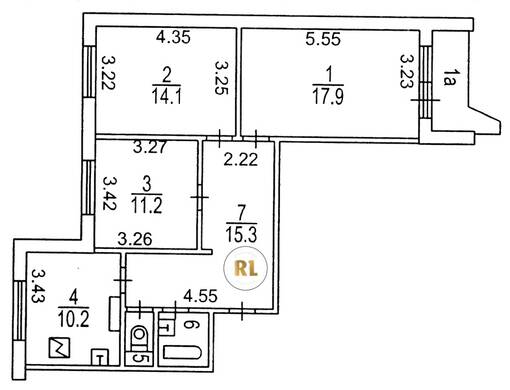
База каталог, Кол-во подъездов: 3, Отсутствует, П-44, Москва, Люблино, Площадь парковки: 0, Пассажирский лифт: 3, От метро: 1390, Юго-Восточный, нет, Наименьшее кол-во этажей: 1, Наибольшее кол-во этажей: 17, Люблино, Кол-во помещений: 207, Кол-во нежилых помещений: 4, Год ввода в эксплуатацию: 1983, 3-комн, Кол-во жилых помещений: 203, Не присвоен, дом 4, нет, да, да, да, да, нет, Отсутствует, Грузовых лифтов: 3, Год постройки: 1983, проезд Кирова, 37.742627, 55.670696
Свяжитесь со мной на счет цены
10 дн.
T55S670696L37S742627T

На карте


Условия сделки

Источник


Старт продаж

Возможно заинтересует