Top.Mail.Ru

улица Маршала Баграмяна, д. 1

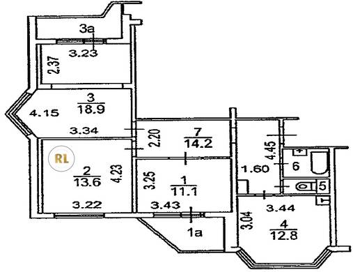
База каталог, Кол-во подъездов: 5, П-44T, Москва, Люблино, Пассажирский лифт: 5, От метро: 2230, Юго-Восточный, да, Наименьшее кол-во этажей: 17, Наибольшее кол-во этажей: 17, Люблино, Кол-во помещений: 340, Кол-во нежилых помещений: 5, Год ввода в эксплуатацию: 2003, 3-комн, Кол-во жилых помещений: 335, дом 1, нет, да, да, нет, нет, нет, Имеется, Грузовых лифтов: 5, Год постройки: 2003, улица Маршала Баграмяна, 37.789510, 55.670793
Свяжитесь со мной на счет цены
10 дн.
T55S670793L37S789510T

На карте


Условия сделки

Источник


Старт продаж

Возможно заинтересует