Top.Mail.Ru

Совхозная ул., д. 10, к. 1

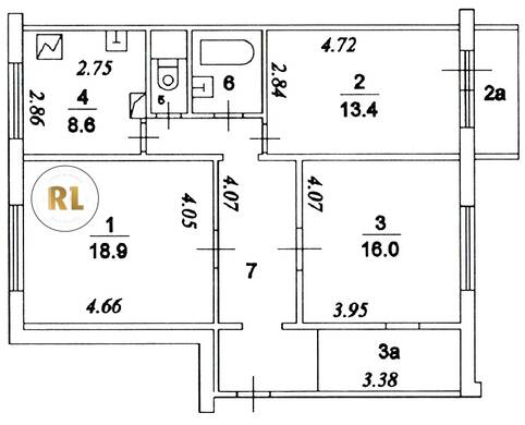
База каталог, Кол-во подъездов: 5, Отсутствует, П-46, Москва, Люблино, Пассажирский лифт: 5, От метро: 780, Юго-Восточный, да, Наименьшее кол-во этажей: 0, Наибольшее кол-во этажей: 14, Люблино, Кол-во помещений: 220, Кол-во нежилых помещений: 0, Год ввода в эксплуатацию: 2002, 3-комн, Кол-во жилых помещений: 220, дом 10, корпус 1, нет, да, да, да, да, да, Имеется, Грузовых лифтов: 5, Год постройки: 2002, Совхозная улица, 37.752356, 55.671036
Свяжитесь со мной на счет цены
10 дн.
T55S671036L37S752356T

На карте


Условия сделки

Источник


Старт продаж

Возможно заинтересует