Top.Mail.Ru

улица Маршала Баграмяна, д. 3

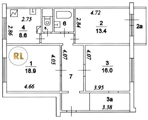
База каталог, Кол-во подъездов: 4, П-46M, Москва, Люблино, Пассажирский лифт: 0, От метро: 2260, Юго-Восточный, да, Наименьшее кол-во этажей: 0, Наибольшее кол-во этажей: 8, Люблино, Кол-во помещений: 102, Кол-во нежилых помещений: 0, Год ввода в эксплуатацию: 2003, 3-комн, Кол-во жилых помещений: 102, дом 3, нет, да, да, нет, нет, нет, Имеется, Грузовых лифтов: 4, Год постройки: 2003, улица Маршала Баграмяна, 37.790696, 55.671158
Свяжитесь со мной на счет цены
10 дн.
T55S671158L37S790696T

На карте


Условия сделки

Источник


Старт продаж

Возможно заинтересует