Top.Mail.Ru

Севастопольский проспект, д. 45, к. 1

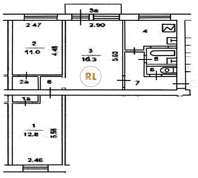
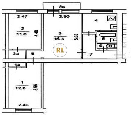
База каталог, Кол-во подъездов: 5, I-511, Москва, Котловка, Пассажирский лифт: 0, От метро: 1640, Юго-Западный, да, Наименьшее кол-во этажей: 5, Наибольшее кол-во этажей: 5, Нахимовский проспект, Кол-во помещений: 75, Кол-во нежилых помещений: 0, Год ввода в эксплуатацию: 1964, 3-комн, Кол-во жилых помещений: 75, E, дом 45, корпус 1, нет, да, да, да, нет, нет, Грузовых лифтов: 0, Год постройки: 1964, Севастопольский проспект, 37.587946, 55.671468
Свяжитесь со мной на счет цены
10 дн.
T55S671468L37S587946T

На карте


Условия сделки

Источник


Старт продаж

Возможно заинтересует