Top.Mail.Ru

Новочеремушкинская ул., д. 49, к. 1

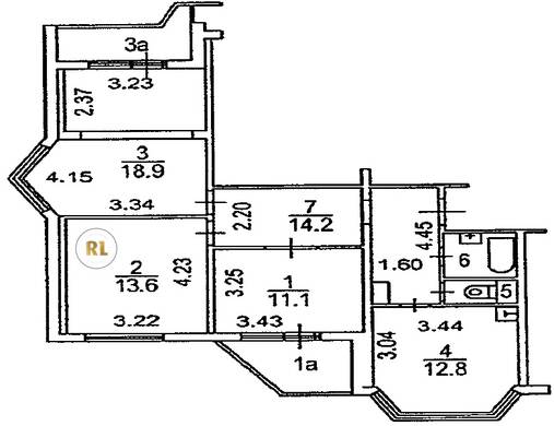
База каталог, Кол-во подъездов: 7, П-44T, Москва, Черемушки, Площадь парковки: 0, Пассажирский лифт: 7, От метро: 1050, Юго-Западный, нет, Наименьшее кол-во этажей: 17, Наибольшее кол-во этажей: 17, Профсоюзная, Кол-во помещений: 456, Кол-во нежилых помещений: 6, Год ввода в эксплуатацию: 2001, 3-комн, Кол-во жилых помещений: 450, Не присвоен, дом 49, корпус 1, нет, да, да, да, да, да, Грузовых лифтов: 7, Год постройки: 2001, Новочеремушкинская улица, 37.572558, 55.672016
Свяжитесь со мной на счет цены
10 дн.
T55S672016L37S572558T

На карте


Условия сделки

Источник


Старт продаж

Возможно заинтересует