Top.Mail.Ru

Новочеремушкинская ул., д. 50, к. 3

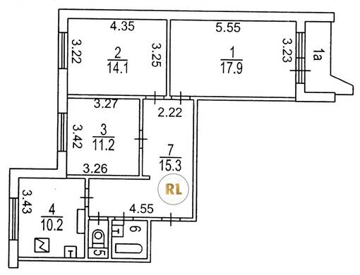
База каталог, Кол-во подъездов: 7, П-44, Москва, Черемушки, Площадь парковки: 0, Пассажирский лифт: 7, От метро: 650, Юго-Западный, нет, Наименьшее кол-во этажей: 17, Наибольшее кол-во этажей: 17, Новые Черёмушки, Кол-во помещений: 452, Кол-во нежилых помещений: 2, Год ввода в эксплуатацию: 1995, 3-комн, Кол-во жилых помещений: 450, Не присвоен, дом 50, корпус 3, нет, да, да, да, да, да, Грузовых лифтов: 7, Год постройки: 1995, Новочеремушкинская улица, 37.564293, 55.672174
Свяжитесь со мной на счет цены
10 дн.
T55S672174L37S564293T

На карте


Условия сделки

Источник


Старт продаж

Возможно заинтересует