Top.Mail.Ru

Профсоюзная ул., д. 27, к. 7

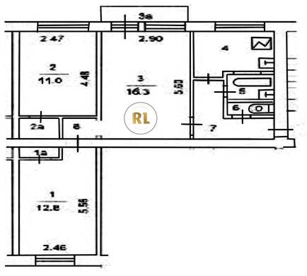
База каталог, Кол-во подъездов: 4, I-511, Москва, Черемушки, Площадь парковки: 0, Пассажирский лифт: 0, От метро: 640, Юго-Западный, нет, Наименьшее кол-во этажей: 5, Наибольшее кол-во этажей: 5, Новые Черёмушки, Кол-во помещений: 80, Кол-во нежилых помещений: 0, Год ввода в эксплуатацию: 1961, 3-комн, Кол-во жилых помещений: 80, Не присвоен, дом 27, корпус 7, нет, да, да, да, да, да, Грузовых лифтов: 0, Год постройки: 1961, Профсоюзная улица, 37.563629, 55.672448
Свяжитесь со мной на счет цены
10 дн.
T55S672448L37S563629T

На карте


Условия сделки

Источник


Старт продаж

Возможно заинтересует