Top.Mail.Ru

Новороссийская ул., д. 28

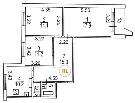
База каталог, Кол-во подъездов: 4, Отсутствует, П-44, Москва, Люблино, Пассажирский лифт: 4, От метро: 350, Юго-Восточный, да, Наименьшее кол-во этажей: 0, Наибольшее кол-во этажей: 17, Люблино, Кол-во помещений: 258, Кол-во нежилых помещений: 0, Год ввода в эксплуатацию: 2003, 3-комн, Кол-во жилых помещений: 258, дом 28, да, да, да, да, да, да, Имеется, Грузовых лифтов: 4, Год постройки: 2003, Новороссийская улица, 37.758500, 55.672514
Свяжитесь со мной на счет цены
10 дн.
T55S672514L37S758500T

На карте


Условия сделки

Источник


Старт продаж

Возможно заинтересует