Top.Mail.Ru

Нагорный бульвар, д. 6

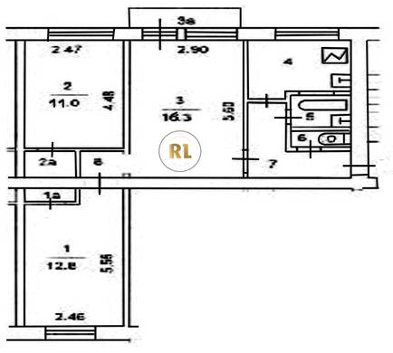
База каталог, Кол-во подъездов: 3, I-511, Москва, Котловка, Площадь парковки: 0, Пассажирский лифт: 0, От метро: 1490, Юго-Западный, нет, Наименьшее кол-во этажей: 5, Наибольшее кол-во этажей: 5, Нагорная, Кол-во помещений: 58, Кол-во нежилых помещений: 0, Год ввода в эксплуатацию: 1958, 3-комн, Кол-во жилых помещений: 58, E, дом 6, нет, да, да, да, да, нет, Грузовых лифтов: 0, Год постройки: 1958, Нагорный бульвар, 37.594531, 55.672671
Свяжитесь со мной на счет цены
10 дн.
T55S672671L37S594531T

На карте


Условия сделки

Источник


Старт продаж

Возможно заинтересует