Top.Mail.Ru

Новороссийская ул., д. 25, к. 3

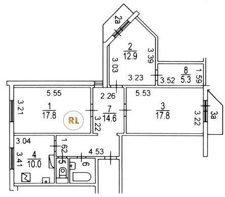
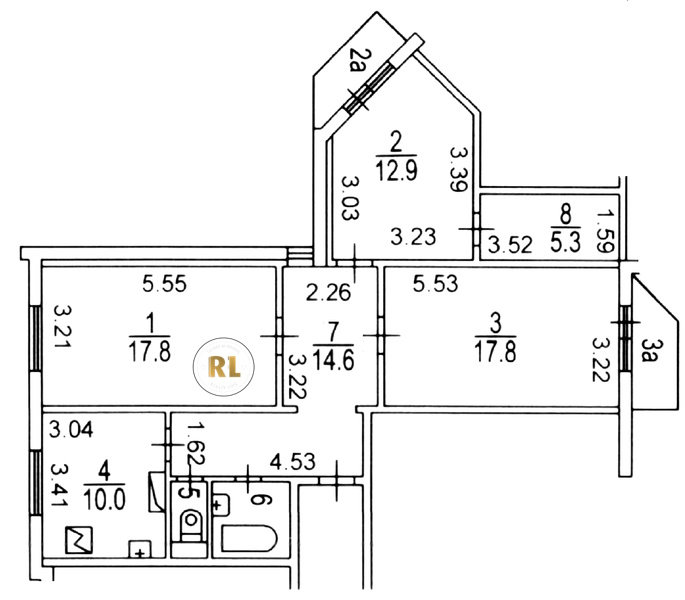
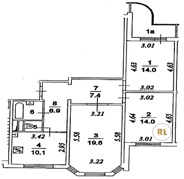
База каталог, Кол-во подъездов: 2, Имеется, П-3M, Москва, Люблино, Пассажирский лифт: 2, От метро: 298, Юго-Восточный, да, Наименьшее кол-во этажей: 0, Наибольшее кол-во этажей: 17, Люблино, Кол-во помещений: 136, Кол-во нежилых помещений: 0, Год ввода в эксплуатацию: 2003, 3-комн, Кол-во жилых помещений: 136, дом 25, корпус 3, да, да, да, да, да, да, Имеется, Грузовых лифтов: 2, Год постройки: 2003, Новороссийская улица, 37.763297, 55.673321
Свяжитесь со мной на счет цены
10 дн.
T55S673321L37S763297T

На карте


Условия сделки

Источник


Старт продаж

Возможно заинтересует