Top.Mail.Ru

Нагорная ул., д. 29, к. 3

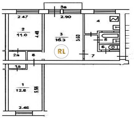
База каталог, Кол-во подъездов: 4, I-511, Москва, Котловка, Площадь парковки: 0, Пассажирский лифт: 0, От метро: 860, Юго-Западный, нет, Наименьшее кол-во этажей: 5, Наибольшее кол-во этажей: 5, Нагорная, Кол-во помещений: 80, Кол-во нежилых помещений: 0, Год ввода в эксплуатацию: 1961, 3-комн, Кол-во жилых помещений: 80, E, дом 29, корпус 3, нет, да, да, да, да, да, Грузовых лифтов: 0, Год постройки: 1961, Нагорная улица, 37.601106, 55.673671
Свяжитесь со мной на счет цены
10 дн.
T55S673671L37S601106T

На карте


Условия сделки

Источник


Старт продаж

Возможно заинтересует