Top.Mail.Ru

Новочеремушкинская ул., д. 40, к. 1

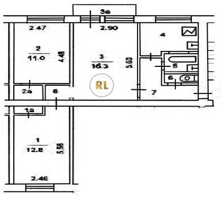
База каталог, Кол-во подъездов: 4, I-511, Москва, Черемушки, Площадь парковки: 0, Пассажирский лифт: 0, От метро: 610, Юго-Западный, нет, Наименьшее кол-во этажей: 5, Наибольшее кол-во этажей: 5, Профсоюзная, Кол-во помещений: 80, Кол-во нежилых помещений: 0, Год ввода в эксплуатацию: 1961, 3-комн, Кол-во жилых помещений: 80, Не присвоен, дом 40, корпус 1, нет, да, да, да, да, да, Грузовых лифтов: 0, Год постройки: 1961, Новочеремушкинская улица, 37.569629, 55.674138
Свяжитесь со мной на счет цены
10 дн.
T55S674138L37S569629T

На карте


Условия сделки

Источник


Старт продаж

Возможно заинтересует