Top.Mail.Ru

Новочеремушкинская ул., д. 38, к. 1

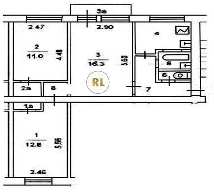
База каталог, Кол-во подъездов: 4, I-511, Москва, Черемушки, Площадь парковки: 0, Пассажирский лифт: 0, От метро: 590, Юго-Западный, нет, Наименьшее кол-во этажей: 5, Наибольшее кол-во этажей: 5, Профсоюзная, Кол-во помещений: 80, Кол-во нежилых помещений: 5, Год ввода в эксплуатацию: 1961, 3-комн, Кол-во жилых помещений: 75, Не присвоен, дом 38, корпус 1, да, да, да, да, да, да, Грузовых лифтов: 0, Год постройки: 1961, Новочеремушкинская улица, 37.570007, 55.674478
Свяжитесь со мной на счет цены
10 дн.
T55S674478L37S570007T

На карте


Условия сделки

Источник


Старт продаж

Возможно заинтересует