Top.Mail.Ru

Армавирская ул., д. 7

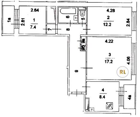
База каталог, Кол-во подъездов: 3, Отсутствует, П-30, Москва, Люблино, Площадь парковки: 0, Пассажирский лифт: 6, От метро: 780, Юго-Восточный, нет, Наименьшее кол-во этажей: 0, Наибольшее кол-во этажей: 12, Люблино, Кол-во помещений: 142, Кол-во нежилых помещений: 0, Год ввода в эксплуатацию: 1984, 3-комн, Кол-во жилых помещений: 142, Не присвоен, дом 7, нет, да, да, да, да, да, Имеется, Грузовых лифтов: 0, Год постройки: 1984, Армавирская улица, 37.751844, 55.674763
Свяжитесь со мной на счет цены
10 дн.
T55S674763L37S751844T

На карте


Условия сделки

Источник


Старт продаж

Возможно заинтересует