Top.Mail.Ru

Профсоюзная ул., д. 40, к. 1

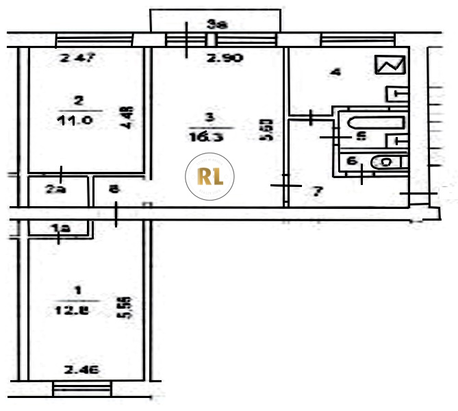
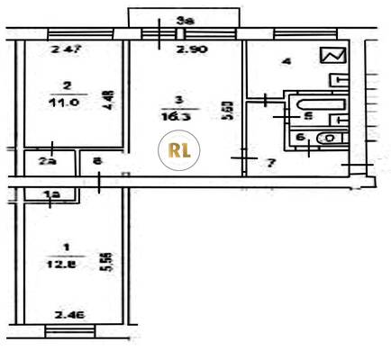
База каталог, Кол-во подъездов: 4, I-511, Москва, Черемушки, Площадь парковки: 0, Пассажирский лифт: 0, От метро: 360, Юго-Западный, нет, Наименьшее кол-во этажей: 5, Наибольшее кол-во этажей: 5, Профсоюзная, Кол-во помещений: 80, Кол-во нежилых помещений: 1, Год ввода в эксплуатацию: 1960, 3-комн, Кол-во жилых помещений: 79, Не присвоен, дом 40, корпус 1, да, да, да, да, да, да, Грузовых лифтов: 0, Год постройки: 1960, Профсоюзная улица, 37.558032, 55.675306
Свяжитесь со мной на счет цены
10 дн.
T55S675306L37S558032T

На карте


Условия сделки

Источник


Старт продаж

Возможно заинтересует