Top.Mail.Ru

Большая Очаковская ул., д. 43

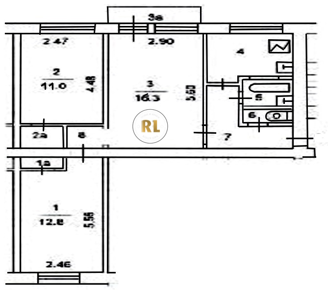
База каталог, Кол-во подъездов: 4, I-511, Москва, Очаково-Матвеевское, Площадь парковки: 336, Пассажирский лифт: 0, От метро: 570, Западный, да, Наименьшее кол-во этажей: 1, Наибольшее кол-во этажей: 5, Озёрная, Кол-во помещений: 0, Кол-во нежилых помещений: 0, Год ввода в эксплуатацию: 1964, 3-комн, Кол-во жилых помещений: 0, Не присвоен, дом 43, да, да, да, да, да, да, Грузовых лифтов: 0, Год постройки: 1964, Большая Очаковская улица, 37.446614, 55.675357
Свяжитесь со мной на счет цены
10 дн.
T55S675357L37S446614T

На карте


Условия сделки

Источник


Старт продаж

Возможно заинтересует