Top.Mail.Ru

Профсоюзная ул., д. 42, к. 4

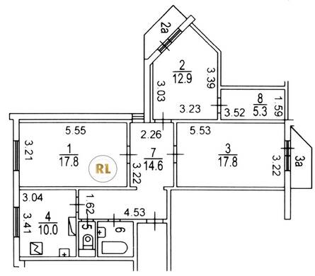
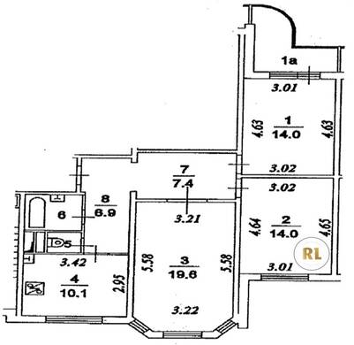
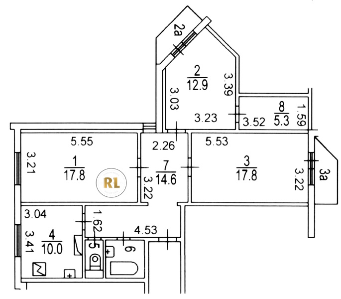
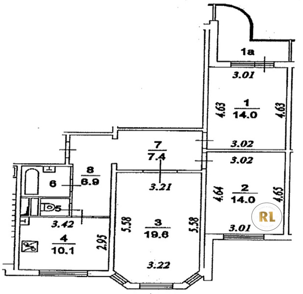
База каталог, Кол-во подъездов: 3, Отсутствует, П-3M, Москва, Черемушки, Площадь парковки: 210, Пассажирский лифт: 3, От метро: 500, Юго-Западный, да, Наименьшее кол-во этажей: 17, Наибольшее кол-во этажей: 17, Профсоюзная, Кол-во помещений: 204, Кол-во нежилых помещений: 2, Год ввода в эксплуатацию: 2003, 3-комн, Кол-во жилых помещений: 202, D, дом 42, корпус 4, да, да, да, да, да, да, Отсутствует, Грузовых лифтов: 3, Год постройки: 2003, Профсоюзная улица, 37.556289, 55.675367
Свяжитесь со мной на счет цены
10 дн.
T55S675367L37S556289T

На карте


Условия сделки

Источник


Старт продаж

Возможно заинтересует