Top.Mail.Ru

Озерная ул., д. 30, к. 1

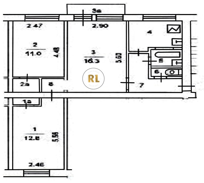
База каталог, Кол-во подъездов: 4, I-511, Москва, Очаково-Матвеевское, Площадь парковки: 0, Пассажирский лифт: 0, От метро: 520, Западный, нет, Наименьшее кол-во этажей: 1, Наибольшее кол-во этажей: 5, Озёрная, Кол-во помещений: 0, Кол-во нежилых помещений: 0, Год ввода в эксплуатацию: 1964, 3-комн, Кол-во жилых помещений: 0, Не присвоен, дом 30, корпус 1, да, да, да, да, да, да, Грузовых лифтов: 0, Год постройки: 1964, Озерная улица, 37.451348, 55.675407
Свяжитесь со мной на счет цены
10 дн.
T55S675407L37S451348T

На карте


Условия сделки

Источник


Старт продаж

Возможно заинтересует