Top.Mail.Ru

Севастопольский проспект, д. 29

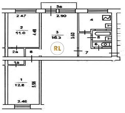
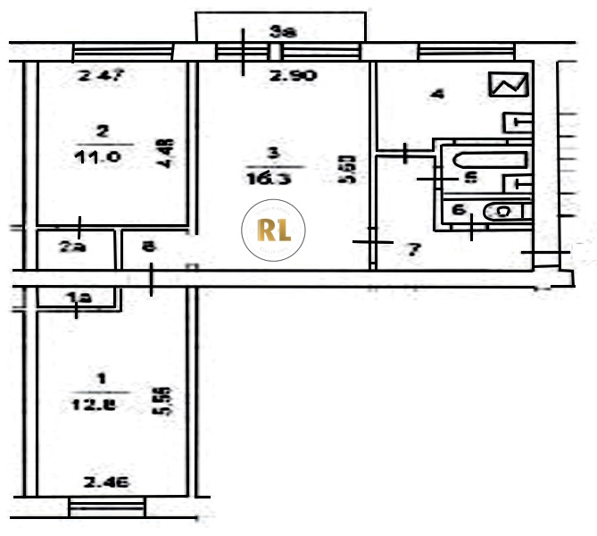
База каталог, Кол-во подъездов: 4, I-511, Москва, Котловка, Пассажирский лифт: 0, От метро: 1510, Юго-Западный, да, Наименьшее кол-во этажей: 5, Наибольшее кол-во этажей: 5, Нагорная, Кол-во помещений: 80, Кол-во нежилых помещений: 0, Год ввода в эксплуатацию: 1961, 3-комн, Кол-во жилых помещений: 80, E, дом 29, нет, да, да, да, да, нет, Грузовых лифтов: 0, Год постройки: 1961, Севастопольский проспект, 37.593237, 55.676077
Свяжитесь со мной на счет цены
10 дн.
T55S676077L37S593237T

На карте


Условия сделки

Источник


Старт продаж

Возможно заинтересует