Top.Mail.Ru

улица Ремизова, д. 10

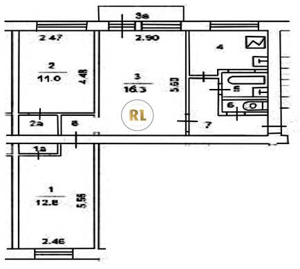
База каталог, Кол-во подъездов: 6, I-511, Москва, Котловка, Площадь парковки: 0, Пассажирский лифт: 0, От метро: 900, Юго-Западный, нет, Наименьшее кол-во этажей: 5, Наибольшее кол-во этажей: 5, Нагорная, Кол-во помещений: 112, Кол-во нежилых помещений: 10, Год ввода в эксплуатацию: 1963, 3-комн, Кол-во жилых помещений: 102, E, дом 10, нет, да, да, да, да, да, Грузовых лифтов: 0, Год постройки: 1963, улица Ремизова, 37.600657, 55.676220
Свяжитесь со мной на счет цены
10 дн.
T55S676220L37S600657T

На карте


Условия сделки

Источник


Старт продаж

Возможно заинтересует