Top.Mail.Ru

Краснодарская ул., д. 8

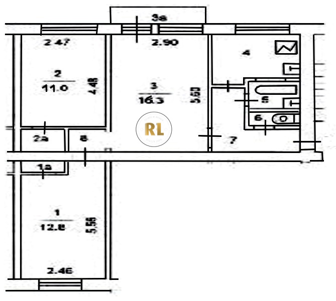
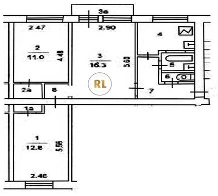
База каталог, Кол-во подъездов: 5, Отсутствует, I-511, Москва, Люблино, Пассажирский лифт: 0, От метро: 1360, Юго-Восточный, да, Наименьшее кол-во этажей: 0, Наибольшее кол-во этажей: 5, Люблино, Кол-во помещений: 100, Кол-во нежилых помещений: 0, Год ввода в эксплуатацию: 1965, 3-комн, Кол-во жилых помещений: 100, дом 8, нет, да, да, да, да, нет, Имеется, Грузовых лифтов: 0, Год постройки: 1965, Краснодарская улица, 37.742241, 55.676291
Свяжитесь со мной на счет цены
10 дн.
T55S676291L37S742241T

На карте


Условия сделки

Источник


Старт продаж

Возможно заинтересует