Top.Mail.Ru

Нахимовский проспект, д. 61, к. 6

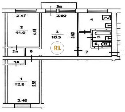
База каталог, Кол-во подъездов: 4, I-511, Москва, Черемушки, Площадь парковки: 0, Пассажирский лифт: 0, От метро: 370, Юго-Западный, нет, Наименьшее кол-во этажей: 5, Наибольшее кол-во этажей: 5, Профсоюзная, Кол-во помещений: 80, Кол-во нежилых помещений: 0, Год ввода в эксплуатацию: 1960, 3-комн, Кол-во жилых помещений: 80, Не присвоен, дом 61, корпус 6, да, да, да, да, да, да, Грузовых лифтов: 0, Год постройки: 1960, Нахимовский проспект, 37.557143, 55.676844
Свяжитесь со мной на счет цены
10 дн.
T55S676844L37S557143T

На карте


Условия сделки

Источник


Старт продаж

Возможно заинтересует