Top.Mail.Ru

улица Ремизова, д. 8

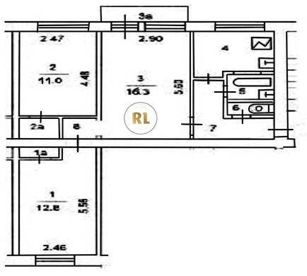
База каталог, Кол-во подъездов: 4, I-511, Москва, Котловка, Площадь парковки: 0, Пассажирский лифт: 0, От метро: 1060, Юго-Западный, нет, Наименьшее кол-во этажей: 5, Наибольшее кол-во этажей: 5, Нагорная, Кол-во помещений: 56, Кол-во нежилых помещений: 0, Год ввода в эксплуатацию: 1959, 3-комн, Кол-во жилых помещений: 56, E, дом 8, нет, да, да, да, да, да, Грузовых лифтов: 0, Год постройки: 1959, улица Ремизова, 37.598789, 55.677113
Свяжитесь со мной на счет цены
10 дн.
T55S677113L37S598789T

На карте


Условия сделки

Источник


Старт продаж

Возможно заинтересует